Mehr anzeigen zum Thema Beschreibung Beschreibung
Wir präsentieren Ihnen ein Baugrundstück inmitten eines Neubaugebiets von Fritzlar.
Die beiden großzügigen und genehmigten Doppelhaushälften mit Kellergeschoss (teilweise Wohnraum möglich) und Garage sind in massiver und energiesparender Bauweise geplant.
Die Baugrube ist bereits ausgehoben, die Entwässerungsleitungen eingebaut, die bewährte Bodenplatte ist fertig gestellt und abgenommen.
Das Grundstück mit seinen ca. 758,17 m² Grundstücksgröße ist inmitten des Neubaugebiets von Fritzlar gelegen. Es liegt in einem Bebauungsplan und erlaubt dort 0,3 Grundfläche und 0,4 Geschossfläche. Das Grundstück hat eine Straßenbreite von ca. 23,72 Metern sowie eine Länge von ca. 29,90 Metern.
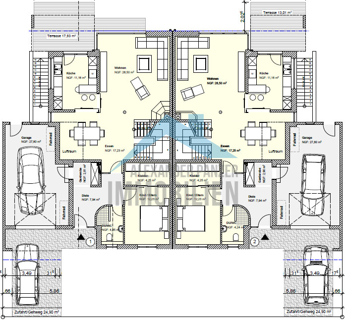
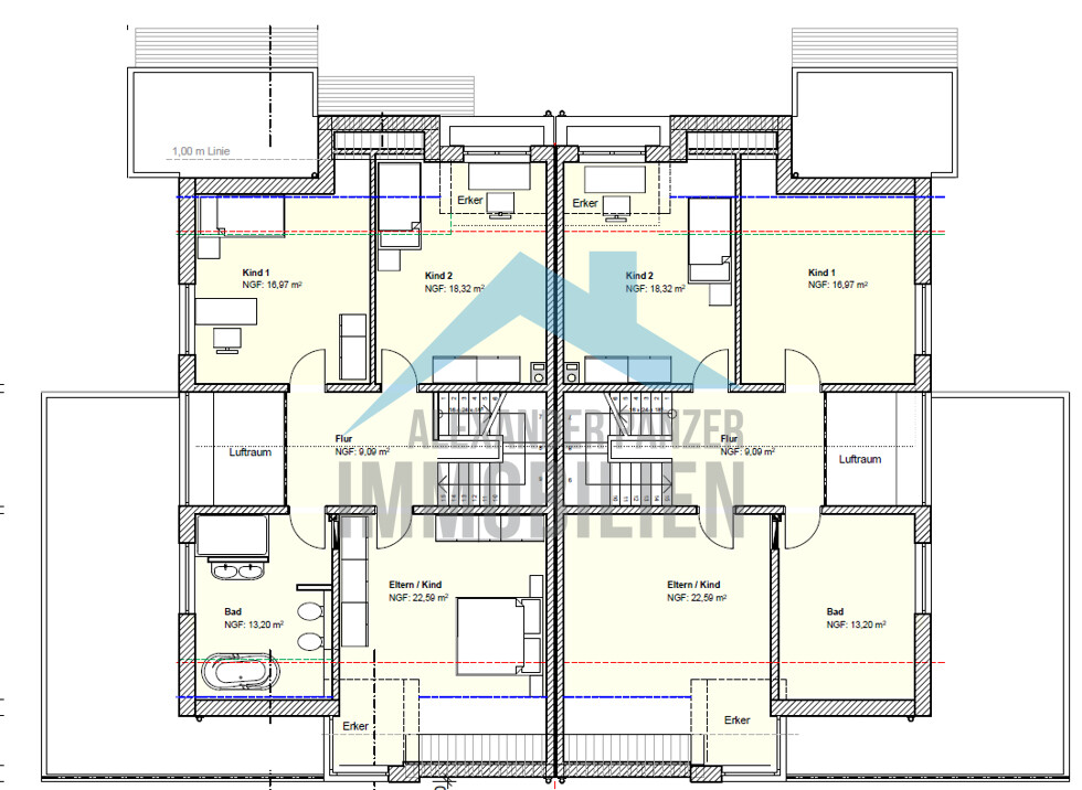
Die Gartenseite befindet sich in Südausrichtung. Der Bruttorauminhalt des Doppelhauses beläuft sich auf ca. 2.224,97 m³. Eine Doppelhaushälfte bieten ca. 168,64 m² Wohnfläche, welche sich auf 5 Zimmer, eine Küche und einem Badezimmer und ein Duschbad verteilt. Ein zusätzlicher Ankleide- sowie Garderobenbereich im Erdgeschoss gehören ebenfalls dazu. Die Keller verfügen über separate Ausgänge in die Gärten und geräumige Garagen, die sich jeweils seitlich auf der Grundstücksgrenze befinden.
Das Grundstück ist nicht geteilt, es ist somit möglich, eine Realteilung vorzunehmen oder eine Wohnungseigentümergemeinschaft (WEG) zu gründen.
Die beiden großzügigen und genehmigten Doppelhaushälften mit Kellergeschoss (teilweise Wohnraum möglich) und Garage sind in massiver und energiesparender Bauweise geplant.
Die Baugrube ist bereits ausgehoben, die Entwässerungsleitungen eingebaut, die bewährte Bodenplatte ist fertig gestellt und abgenommen.
Das Grundstück mit seinen ca. 758,17 m² Grundstücksgröße ist inmitten des Neubaugebiets von Fritzlar gelegen. Es liegt in einem Bebauungsplan und erlaubt dort 0,3 Grundfläche und 0,4 Geschossfläche. Das Grundstück hat eine Straßenbreite von ca. 23,72 Metern sowie eine Länge von ca. 29,90 Metern.
Die Gartenseite befindet sich in Südausrichtung. Der Bruttorauminhalt des Doppelhauses beläuft sich auf ca. 2.224,97 m³. Eine Doppelhaushälfte bieten ca. 168,64 m² Wohnfläche, welche sich auf 5 Zimmer, eine Küche und einem Badezimmer und ein Duschbad verteilt. Ein zusätzlicher Ankleide- sowie Garderobenbereich im Erdgeschoss gehören ebenfalls dazu. Die Keller verfügen über separate Ausgänge in die Gärten und geräumige Garagen, die sich jeweils seitlich auf der Grundstücksgrenze befinden.
Das Grundstück ist nicht geteilt, es ist somit möglich, eine Realteilung vorzunehmen oder eine Wohnungseigentümergemeinschaft (WEG) zu gründen.
Mehr anzeigen zum Thema Lage Lage
Die Immobilie ist in Fritzlar in einem Neubaugebiet „Roter Rain“ gelegen.
Einkaufsmöglichkeiten, die den täglichen Bedarf decken, sind natürlich in Fritzlar vorhanden und in wenigen Autominuten zu erreichen.
Fritzlar verfügt über eine gute Verkehrsanbindung nach Kassel.
Grundschule, Kindergarten jeweils mit ganztägiger Kinderbetreuung, sind in unmittelbarer Umgebung vorzufinden.
Einkaufsmöglichkeiten, die den täglichen Bedarf decken, sind natürlich in Fritzlar vorhanden und in wenigen Autominuten zu erreichen.
Fritzlar verfügt über eine gute Verkehrsanbindung nach Kassel.
Grundschule, Kindergarten jeweils mit ganztägiger Kinderbetreuung, sind in unmittelbarer Umgebung vorzufinden.
Mehr anzeigen zum Thema Sonstige Angaben Sonstige Angaben
Die Angaben im Immobilieninserat erfolgen im Namen unseres Auftraggebers und dienen einer Erstinformation. Aus diesem Grund kann für die Richtigkeit und Vollständigkeit keine Haftung übernommen werden.
Sie möchten wissen, was Ihre Immobilie zum aktuellen Zeitpunkt für einen Marktwert besitzt?
Sie sind sich unsicher welchen Wert Ihre Immobilie haben könnte?
Setzen Sie sich doch einfach unverbindlich und kostenlos mit uns in Verbindung
oder nutzen Sie unseren Rückruf-Service. Die Bewertung Ihrer Immobilie ist Sache eines Spezialisten! Die Marktwerteinschätzung ist für Sie ebenfalls unverbindlich und kostenlos.
Eine persönliche Beratung und Betreuung, sowie eine moderne und qualifizierte Marketingstrategie stehen bei uns im Vordergrund!
Profitieren Sie von unserer langjährigen Erfahrung und dem guten Netzwerk auf dem Kasseler Immobilienmarkt. Sehr gute Marktkenntnisse ermöglichen es für Sie den bestmöglichen Preis zu erzielen und solvente Käufer zu finden! Der große Kundenkreis verschafft uns qualifizierte Interessenten und kurze Vermarktungszeiten. Wir sind schnell, diskret und seriös.
Alexander Panzer Immobilen
… mit uns Suchen Sie gezielt!
Sie möchten wissen, was Ihre Immobilie zum aktuellen Zeitpunkt für einen Marktwert besitzt?
Sie sind sich unsicher welchen Wert Ihre Immobilie haben könnte?
Setzen Sie sich doch einfach unverbindlich und kostenlos mit uns in Verbindung
oder nutzen Sie unseren Rückruf-Service. Die Bewertung Ihrer Immobilie ist Sache eines Spezialisten! Die Marktwerteinschätzung ist für Sie ebenfalls unverbindlich und kostenlos.
Eine persönliche Beratung und Betreuung, sowie eine moderne und qualifizierte Marketingstrategie stehen bei uns im Vordergrund!
Profitieren Sie von unserer langjährigen Erfahrung und dem guten Netzwerk auf dem Kasseler Immobilienmarkt. Sehr gute Marktkenntnisse ermöglichen es für Sie den bestmöglichen Preis zu erzielen und solvente Käufer zu finden! Der große Kundenkreis verschafft uns qualifizierte Interessenten und kurze Vermarktungszeiten. Wir sind schnell, diskret und seriös.
Alexander Panzer Immobilen
… mit uns Suchen Sie gezielt!
Mehr anzeigen zum Thema Sonstige Angaben Energieausweis
- Nutzungsart
- Wohnen
Ihr Ansprechpartner
Herr Alexander Panzer
Alexander Panzer Immobilien
- Tel.:
- 0561-50346240
- E-Mail:
- info@apanzer-immobilien.de
Uhlandstraße 16
34246 Vellmar